MegaCAD 2D



Die tausendfach bewährte 2D-Zeichnungssoftware beweist täglich aufs Neue, wie effektiv und komfortabel CAD-Konstruieren sein kann. Dank der übersichtlich angeordneten Menüs stehen alle notwendigen Befehle und Informationen auf den ersten Blick bereit.
Das bewährte Konstruktionswerkzeug.

Seit vielen Jahren ist MegaCAD das zuverlässige und bewährte 2D-Konstruktionswerkzeug. Tausendfach im Einsatz beweist MegaCAD täglich aufs Neue, wie effektiv und komfortabel die Arbeit mit einer modernen 2D-CAD-Software sein kann.

Durch die übersichtlich angeordneten Menüs stehen alle notwendigen Befehle und Informationen auf den ersten Blick bereit. Zusätzliche Unterstützung bietet die intelligente Menüverwaltung, die immer nur jene Zeichenfunktionalitäten einblendet, die für den jeweiligen Arbeitsschritt sinnvoll und notwendig sind.
Datenblatt:
Schnittstellen
Demoversion
Jetzt direkt anfragen!


MegaCAD Center Schweiz

Tel.: 044 / 885 72 33

E-Mail: info@megacad.ch
Wir melden uns auch gerne bei Ihnen.

Kontaktformular:
Zeichnen wie am Zeichenbrett



Das Zeichnen mit MegaCAD 2D geht so leicht von der Hand, dass der Eindruck entsteht, man würde am altbewährten Zeichenbrett arbeiten. Technische Zeichnungen, vom Einzelteil bis zur Fertigungszeichnung, lassen sich so effizient entwerfen und detaillieren. Dabei machen dutzende Linien- und Kreisfunktionen Hilfskonstruktionen komplett überflüssig. Die Statusleiste zeigt auf einen Blick die Eigenschaften des aktivierten Werkzeugs an, um beispielsweise die Eigenschaften der ausgewählten Elemente schnell zu definieren.

Viele Operationen werden direkt an der Zeichnung durchgeführt, ohne das Arbeitsfenster verlassen zu müssen. Zeit sparen Sie auch wegen des mitdenkenden Menüs, das immer genau die Funktionen anbietet, die Sie gerade benötigen. So schlägt beispielsweise der Bemaßungsassistent stets die wahrscheinlichste Bemaßung vor.

Das Konstruktionswerkzeug für Praktiker

MegaCAD bietet eine Fülle an Funktionen, die direkt auf die Bedürfnisse des Anwenders zugeschnitten sind. Das oberste Ziel von MegaCAD ist es, stets den praktischen Nutzen im Auge zu behalten. Deshalb wird MegaCAD auch von Praktikern für Praktiker entwickelt.

Weitere MegaCAD 2D Funktionen

Hier finden Sie eine kleine Auswahl aller Funktionen, die das tägliche Konstruieren mit MegaCAD 2D noch besser machen.

 

  • Technische Zeichnungen, vom Einzelteil bis zur Fertigungszeichnung, entwerfen und detaillieren
  • Dutzende von Linien und Kreisfunktionen machen Hilfskonstruktionen überflüssig
  • Schnelle Navigation innerhalb der Zeichnung direkt über die Radtaste der Maus
  • Das mitdenkende Menü bietet immer die gerade benötigten Funktionen an
  • Vorhandene Zeichnungselemente direkt mit der Maus kopieren, rotieren, skalieren, spiegeln, strecken oder verschieben
  • Schulungen und Online-Semniare zu MegaCAD 2D finden Sie in unserer

Vorteile auf einen Blick

  • Technische Zeichnungen, vom Einzelteil bis zur Fertigungszeichnung, entwerfen und detaillieren
  • Bestehende Zeichnungselemente direkt mit der Maus kopieren, rotieren, skalieren, spiegeln, strecken oder verschieben
  • Mitdenkendes Menü bietet die aktuell benötigten Funktionen an
  • Zahlreiche Linien und Kreisfunktionen machen zeitraubende Hilfskonstruktionen überflüssig
  • Automatische Flächenerkennung vereinfacht Zuweisen assoziativer Schraffuren
  • Verarbeitung sehr großer Datenmengen dank platzsparender Datenstruktur
  • Leistungsstarke Import-/Export-Funktionen
  • Eigenschaften vorhandener Zeichnungselemente übernehmen oder mit dem Kommando-Cursor per Mausklick ändern
  • Darstellung und Inhalt von der Bemaßung und dem Text direkt editierbar

Komfortable Bemaßung

Komfortable Bemaßung

  • Der Bemaßungsassistent schlägt die jeweils wahrscheinlichste Bemaßungsart vor
  • Automatischer Wechsel zwischen Horizontal-, Vertikal-, Parallel-, Winkel- und Abstandsbemaßung
  • Vielfältige branchenübergreifende Bemaßungsoptionen nach DIN
  • Automatische Ketten- und Bezugsbemaßung
  • Direkte manuelle Einzelbemaßung
  • Datenbankschnittstellen (ODBC/Access/Excel)
  • Datenaustausch (DXF, DWG, HPGL, WMF, CDL)
  • DTP und technische Dokumentation mittels OLE2
  • Einlesen und Speichern von Rasterdaten zur Bearbeitung alter Papierpläne

Weitere MegaCAD 2D Funktionen:

⦁	Technische Zeichnungen ent­werfen und detaillieren, vom Einzel­teil bis zur Fertigungs­zeichnung
⦁	Dutzende von Linien und Kreisfunktionen machen Hilfskonstruktionen überflüssig
⦁	Schnelle Navigation innerhalb der Zeichnung direkt über die Radtaste der Maus
⦁	Das mitdenkende Menü bietet immer die gerade benötigten Funktionen an
Zeichnen wie am Zeichenbrett
⦁ Technische Zeichnungen ent­werfen und detaillieren, vom Einzel­teil bis zur Fertigungs­zeichnung
⦁ Dutzende von Linien und Kreisfunktionen machen Hilfskonstruktionen überflüssig
⦁ Schnelle Navigation innerhalb der Zeichnung direkt über die Radtaste der Maus
⦁ Das mitdenkende Menü bietet immer die gerade benötigten Funktionen an
⦁	Der Bemaßungsassistent schlägt die jeweils wahrscheinlichste Bemaßungsart vor
⦁	Automatischer Wechsel zwischen Horizontal-, Vertikal-, Parallel-, Winkel- und Abstandsbemaßung
⦁	Vielfältige branchenübergreifende Bemaßungsoptionen nach DIN
⦁	Automatische Ketten- und Bezugsbemaßung
⦁	Direkte manuelle Einzelbemaßung
Komfortable Bemaßung
⦁ Der Bemaßungsassistent schlägt die jeweils wahrscheinlichste Bemaßungsart vor
⦁ Automatischer Wechsel zwischen Horizontal-, Vertikal-, Parallel-, Winkel- und Abstandsbemaßung
⦁ Vielfältige branchenübergreifende Bemaßungsoptionen nach DIN
⦁ Automatische Ketten- und Bezugsbemaßung
⦁ Direkte manuelle Einzelbemaßung
Datenbankschnittstellen (ODBC/Access/Excel)
Datenaustausch (DXF, DWG, HPGL, WMF und CDL)
DTP und technische Dokumentation mittels OLE2
Einlesen und Speichern von Rasterdaten zur Bearbeitung alter Papierpläne
Schnittstellen
Datenbankschnittstellen (ODBC/Access/Excel)
Datenaustausch (DXF, DWG, HPGL, WMF und CDL)
DTP und technische Dokumentation mittels OLE2
Einlesen und Speichern von Rasterdaten zur Bearbeitung alter Papierpläne
RFT-Texteditor zur erweiterten Darstellung von Informationen mit unterschiedlichen Attributen (fett, kursiv, unterstrichen, farbig), kompatibel mit MS-Word™ und allen DTP Programmen
volle Unicode-Unterstützung (kyrillisch, chinesisch etc.)
RFT-Texteditor
RFT-Texteditor zur erweiterten Darstellung von Informationen mit unterschiedlichen Attributen (fett, kursiv, unterstrichen, farbig), kompatibel mit MS-Word™ und allen DTP Programmen
volle Unicode-Unterstützung (kyrillisch, chinesisch etc.)
Assoziative Schraffuren mit automatischer Inselerkennung
Gefüllte Flächen
Beliebige Änderung der Zeichenreihenfolge
Schraffuren
Assoziative Schraffuren mit automatischer Inselerkennung
Gefüllte Flächen
Beliebige Änderung der Zeichenreihenfolge
Drehen mit und ohne Ausgleich der Rotation (Riesenradgondel)
Drehen und verschieben
Drehen mit und ohne Ausgleich der Rotation (Riesenradgondel)
Technische Zeichnungen, vom Einzelteil bis zur Fertigungszeichnung, entwerfen und detaillieren
Entwerfen und detaillieren
Technische Zeichnungen, vom Einzelteil bis zur Fertigungszeichnung, entwerfen und detaillieren
Ganz oder teilweise parametrisierbar
Geometrische Abhängigkeiten werden berücksichtigt
Parametrik
Ganz oder teilweise parametrisierbar
Geometrische Abhängigkeiten werden berücksichtigt
65536 Arbeitsebenen und 65536 Gruppen, die beliebig gruppiert und zusammengefasst werden können.
Flexible Layer und Gruppensteuerung
65536 Arbeitsebenen und 65536 Gruppen, die beliebig gruppiert und zusammengefasst werden können.
Neben reinen Vektordaten können gleichzeitig Rasterdaten in allen gängigen Formaten (BMP, JPG, PCX , TIF etc.) beliebig positioniert und skaliert werden. Alte Papierpläne, Mutterpausen oder Photos können weiter genutzt und überarbeitet werden.
Vektoren mit Rasterdaten verbinden
Neben reinen Vektordaten können gleichzeitig Rasterdaten in allen gängigen Formaten (BMP, JPG, PCX , TIF etc.) beliebig positioniert und skaliert werden. Alte Papierpläne, Mutterpausen oder Photos können weiter genutzt und überarbeitet werden.
Einzelne Zeichnungselemente lassen sich zu Baugruppen zusammenfassen, welche wiederum beliebig schachtelbar sind.
Baugruppen
Einzelne Zeichnungselemente lassen sich zu Baugruppen zusammenfassen, welche wiederum beliebig schachtelbar sind.
Flexibler Druck- und Plotmanager, der Druckaufträge mit individuellen Einstellungen an unterschiedliche Drucker und Plotter verteilt.
Druck- und Plotmanager
Flexibler Druck- und Plotmanager, der Druckaufträge mit individuellen Einstellungen an unterschiedliche Drucker und Plotter verteilt.
Beliebig viele Attributkombinationen, organisiert in 10er-Blöcken.
Attribute vordefinieren
Beliebig viele Attributkombinationen, organisiert in 10er-Blöcken.
Informationen zur Zeichnung optisch anzeigen und als eigene Merker oder zur Weitergabe abspeichern.
Vergleichbar ist der Info-Picker mit einer Pinwand, auf der Infozettel mit Pickern angesteckt werden.
Info-Picker werden nach Farbe und Eigentümer unterschieden.
Info-Picker
Informationen zur Zeichnung optisch anzeigen und als eigene Merker oder zur Weitergabe abspeichern.
Vergleichbar ist der Info-Picker mit einer Pinwand, auf der Infozettel mit Pickern angesteckt werden.
Info-Picker werden nach Farbe und Eigentümer unterschieden.
Dutzende von Linien- und Kreisfunktionen machen zeitaufwendige Hilfskonstruktionen überflüssig.
Hilfskonstruktionen sind überflüssig
Dutzende von Linien- und Kreisfunktionen machen zeitaufwendige Hilfskonstruktionen überflüssig.
Auswahl über einen Kreis oder über ein frei aufgezogenes Vieleck.
Einzelheit (Detailvergrößerung)
Auswahl über einen Kreis oder über ein frei aufgezogenes Vieleck.
Viele Fangfunktionen helfen bei der exakten Erstellung von Zeichnungen.
Fangfunktionen
Viele Fangfunktionen helfen bei der exakten Erstellung von Zeichnungen.
Die Auswahl von Teilen der Zeichnung erfolgt über alle Attribute sowie durch Aufziehen von Rechtecken und beliebig geformten Vielecken mit der Maus. Die Auswahl kann zusätzlich mit einem Elementfilter verknüpft werden.
Selektion
Die Auswahl von Teilen der Zeichnung erfolgt über alle Attribute sowie durch Aufziehen von Rechtecken und beliebig geformten Vielecken mit der Maus. Die Auswahl kann zusätzlich mit einem Elementfilter verknüpft werden.
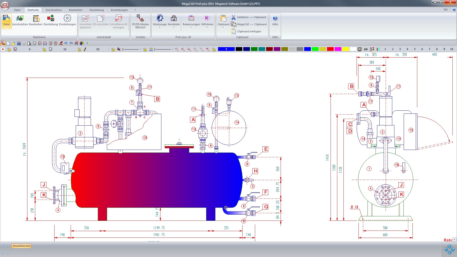
Mit dem „Schraffuren“-Dialog können Flächen auch farbig (mit Farbverlauf unter einem Winkel) oder mit einer Textur belegt werden.
Farbig gefüllte Flächen
Mit dem „Schraffuren“-Dialog können Flächen auch farbig (mit Farbverlauf unter einem Winkel) oder mit einer Textur belegt werden.
Vorhandene Zeichnungselemente direkt mit der Maus kopieren, rotieren, skalieren, spiegeln, strecken oder verschieben
Eigenschaften vorhandener Zeichnungselemente übernehmen oder mit dem Kommando-Cursor per Mausklick ändern
Darstellung und Inhalt von der Bemaßung und dem Text direkt editierbar
Änderungen leicht gemacht
Vorhandene Zeichnungselemente direkt mit der Maus kopieren, rotieren, skalieren, spiegeln, strecken oder verschieben
Eigenschaften vorhandener Zeichnungselemente übernehmen oder mit dem Kommando-Cursor per Mausklick ändern
Darstellung und Inhalt von der Bemaßung und dem Text direkt editierbar

Passende MegaCAD-Applikationen


Addon Metall 2D

zum Shop


© Copyright by MegaCAD-Center (Schweiz) GmbH | CAD Software seit 1985 | Tel. 044 885 72 33 | Hauptvertrieb von MegaCAD-Software in der Schweiz seit 1985 | Impressum | Alle Rechte vorbehalten | Preise in CHF excl. MwSt. | Aktionspreise sind nicht kumulierbar mit Gutschriften oder Gutscheinen | Preise in CHF exkl. MwSt. | Preis- bzw. Funktionsänderungen sowie Publikationsfehler vorbehalten.